Casa modernă de familie se joacă cu transparență și efecte de oglindă

„Casa plutitoare” este o casă modernă de familie în Tel Aviv, Israel și a fost fondată în 2013 de Pitsou Kedem Arhitect proiectat. Conceptul arhitecților a fost de a construi o casă spațioasă pe proprietatea de 550 de metri pătrați, care este separată în camere mai mici, cu funcții diferite, prin curți interioare și despărțitoare mobile.
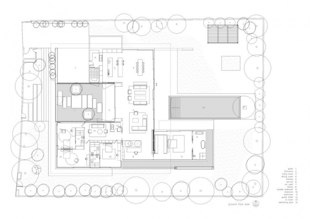
Casa unifamiliară modernă acoperă 550 de metri pătrați

Diferitele camere și curți sunt conectate în ansamblu prin două acoperișuri ultra-subțiri susținute de un punct central, astfel încât acestea par să plutească în aer. Cele două acoperișuri se îmbină și se extind la 5 metri deasupra pereților frontali ai casei. Întregul acoperiș este realizat din materiale ușoare, cu o ușoară pantă.
Casă unifamilială modernă, cu curte interioară

Casa în sine constă dintr-o serie de camere în care limitele dintre interior și exterior se îmbină. Intrarea este încadrată cu un perete din lamele de lemn, care poate fi perceput ca granița dintre cele două zone. Fațada îi protejează pe locuitori de privirile curioase de pe stradă, în timp ce casa din cealaltă parte se deschide complet către curtea interioară.

Dacă mergi prin holul de la intrare, traversezi o piscină transparentă cu stânci mari de bazalt și copaci care par să plutească pe apă. Dacă aruncați o privire mai atentă asupra imaginilor, veți experimenta iluzia că casa pluteste și se reflectă în piscină, la fel cum acoperișul planează peste pereții de sticlă. Bazinul lung și îngust urmează linia pereților și creează efecte uluitoare de oglindă de apă, subliniate de luminile din timpul nopții.
























