Euro paleți din lemn într-o sală de expoziții renovată Two.bo

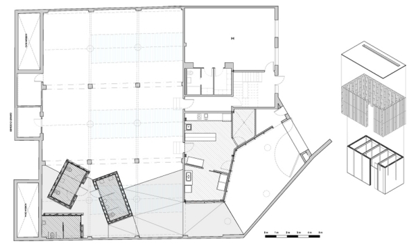
Spațiul pe care Arhitecți este situat într-un pasaj îngust lângă templul Gaudi al „Sagrada Familia”. Clădirea a fost inițial o fabrică de cadre din aluminiu, apoi transformată în parcare. Scopul proiectului a fost transformarea spațiului industrial într-o nouă sală de expoziții flexibilă.
Sala de expoziții renovată de Two.bo

Principala caracteristică a sălii de expoziții a fost prezența industrială puternică, subliniată de tavanele înalte și structura de beton. Lumina puternică care cade din luminatoare se revarsă pe podeaua goală din beton. Arhitecții au încercat să păstreze spiritul spațiului original și să îmbunătățească mediul la un buget minim.
Sala de expoziții inundată de lumină, cu trei cutii europalete din lemn

Lumina din vechiul luminator a fost suficientă pentru a conferi camerei un caracter drăguț. Trebuia doar să curățați toate elementele pentru a beneficia la maximum de această lumină.
cameră inundată de lumină

Cerințele programului au fost minime; doar trei toalete publice în cameră. Deci, trei construcții din lemn au fost construite în sala de expoziții, de parcă un băiețel s-ar fi jucat cu blocurile sale de lemn.
trei cutii din paleti euro

Aspectul cutiilor este dur, dar europaletii din lemn refolositi se potrivesc cu caracterul industrial al camerei. O surpriză este ascunsă în fiecare cutie, o cameră complet familiară, caldă și protejată, mobilată cu mobilier vechi.
luminatoare mari lasă să treacă lumina zilei
     
Toalete realizate din europaleti

vechi motoped

toalete publice

Ziare pe pereți lipite







