Apartament mic în Reykjavik proiectat în întregime în alb și negru

Acest mic apartament din Reykjavik a fost proiectat de Gudmundur Jonsson Arkitektkontor Stuito renovat și complet alb-negru proiectat. Apartamentul este mic (52 m2), dar foarte modern. Fiecare piesă de mobilier este așezată astfel încât camera să fie mobilată într-un mod atractiv din punct de vedere vizual.
Apartament complet alb-negru

Apartamentul este la etajul al doilea, cu vedere la biserică, muzeu, restaurantul Pearl și Munții Albastri în depărtare. Acest cadru spectaculos a fost motivul investiției în apartament, care era în stare foarte proastă.
Mobilier complet alb-negru

Un zid portant și alte pereți au fost demolate și înlocuite cu grinzi de oțel. Ferestrele au fost mărite, astfel încât locuitorii să se bucure de priveliștile frumoase. Planul a fost anterior împărțit în camere separate și acum accentul a fost pus pe proiectarea în plan deschis. Ușile glisante din acril separă dormitorul de sufragerie și bucătărie.
Facilitate deschisă în zona de living

Grinda de oțel este ascunsă de un tavan suspendat, care ascunde în același timp elementele acrilice glisante și oferă ocazia optimă de a te juca cu iluminare diferită ca iluminare indirectă.
Chicinetă albă și insulă cu farfurie neagră

Înălțimea tavanului este mai mult decât medie, iar crearea de dulapuri de bucătărie înalte înseamnă că camera este experimentată cu mai multă splendoare. Apartamentul va fi complet alb-negru proiectat. Culoarea albă este utilizată pentru a crea senzația unui spațiu mai mare. Pentru pardoseala întregului apartament, designerii Casa Dolce Case au ales gresie în culoare gri-maroniu și 60 × 60 cm.
  living deschis
Uși glisante acrilice în dormitor
 
pardoseli de format mare
 
aparate de bucătărie încorporate    
scaun de bar modern în bucătărie  
fotoliu unic alb și picturi frumoase de perete
 
fereastră mare cu rame negre de ferestre
 
Vedere din bucătărie
 
Proiectare baie

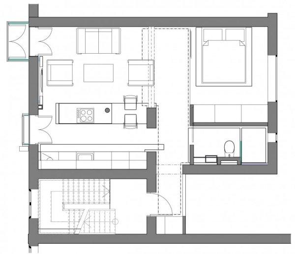
Planul apartamentului
 
Fotografii de Bragi Thor Josefsson
