Locuind la un nivel – Vila X în Olanda

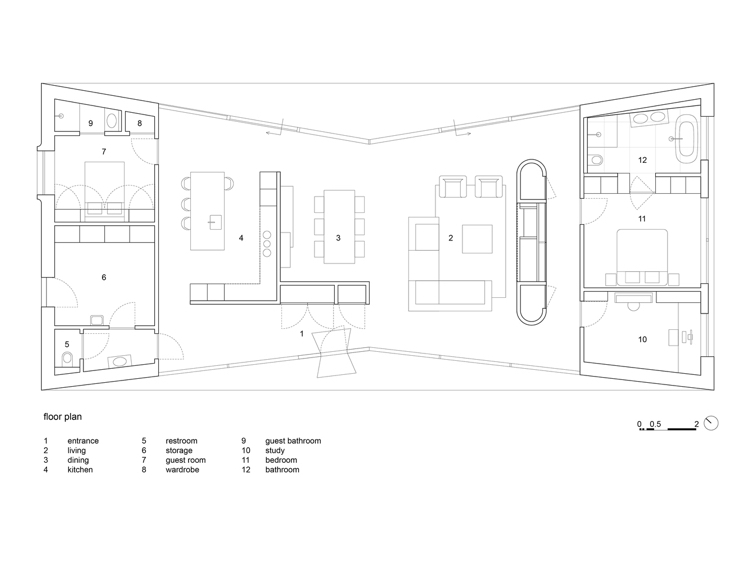
Trăsăturile caracteristice arhitecturii contemporane includ conceptul de living deschis, liniile drepte și mobilierul simplu. „Vila X” proiectată de Barcode Architects este un exemplu excelent de clădire contemporană. Viața comunicativă la un nivel este simbioza perfectă a arhitecturii și a împrejurimilor. Desigur, o condiție prealabilă pentru aceasta este un plan de etaj spațios. Aici proprietarii au o zonă de living spațioasă de aproximativ 220 de metri pătrați.
Arhitectura modernă: trăirea la un nivel

Când trăiți la un nivel, zonele individuale se îmbină perfect și aleargă ușor spre frumoasa grădină. Ferestrele din podea până în tavan și ușile de terasă glisante, care acoperă în cea mai mare parte părțile laterale ale casei, permit o vedere directă și acces la zona exterioară.
Vila X: locuind pe un singur nivel și mobilier modern, minimalist

În Vila modernă X există o atmosferă modernă, minimalistă, în același timp designul camerei nu este nicidecum impersonal sau plictisitor. În fiecare zonă, accentele excelente stabilesc piese individuale de mobilier, opere de artă sau detalii ale facilității accente eficiente, care sunt mai bine accentuate de culorile neutre dominante, alb-negru. Aceste piese unice în culori strălucitoare atrag imediat atenția și evocă o ambianță unică.

Arhitecții au proiectat vila modernă în conformitate cu dorințele și ideile clienților lor. Proprietarii își doreau o atmosferă calmă și naturală. Simplitatea, claritatea, materialele de înaltă calitate și designul modern ar trebui să prevaleze în interiorul casei. Barcode Architects a proiectat un bungalou modern, cu acoperiș plat, în funcție de cerințele individuale ale clienților și de construcția contemporană. Casa este aliniată optim, astfel încât locuitorii să se poată bucura de frumoasa grădină din fiecare colț al zonei de locuit și, în același timp, să beneficieze optim de condițiile climatice. În plus față de utilizarea fără bariere, locuința la un nivel are și alte avantaje, cum ar fi arhitectura clară, spațiul și utilizarea bună a proprietății.

A trăi la un nivel are un singur dezavantaj: ocupă mult spațiu. Dar dacă acest lucru este disponibil, nimic nu stă în calea bucurării unui concept de viață deschisă fără scări.








* un proiect de Arhitecți cu coduri de bare
