Construiți o casă modernă în grădină în jurul a doi copaci cu valoare sentimentală

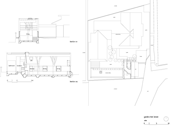
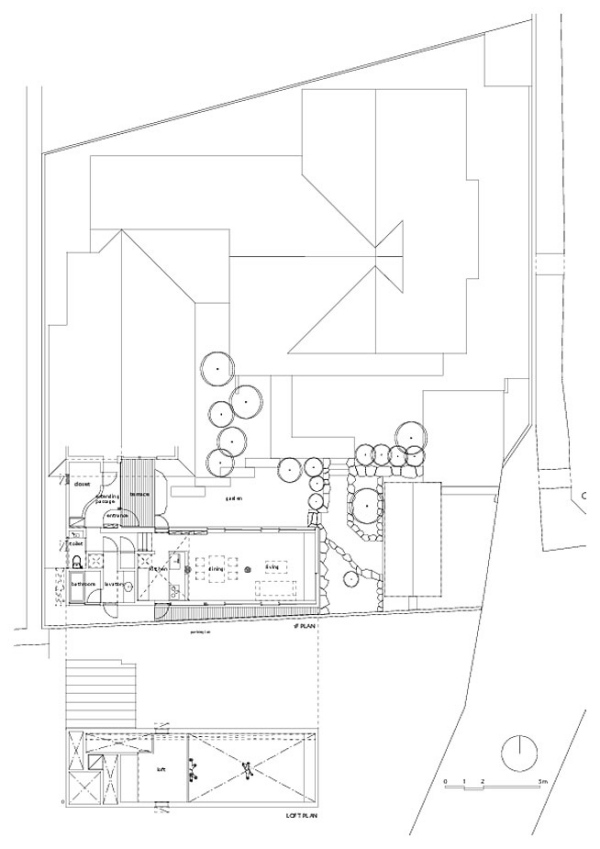
Această căsuță din grădină a fost proiectată de studioul arhitectului Hironaka Ogawa & Asociați proiectat și construit în 2012 pentru un client din Kagawa, Japonia. Clădirea a fost reconstruită pe locul unei case vechi. Pe această proprietate sunt doi copaci cu valoare sentimentală. Prin urmare, arhitecții au reproiectat proiectul astfel încât casa să fie construită în jurul trunchiurilor de copaci.
Casa din grădină cu un design modern în stil minimalist

Acea Casă în grădină a fost construit foarte simplu și simplu în armonie cu grădina ordonată. Zona de grădină a fost mobilată în stil japonez cu multă senzație estetică. Aspectul casei din exterior arată minimalist și elegant. Proprietatea este extrem de mică, dar este potrivită pentru toate nevoile proprietarului.
Casă în grădină – copaci ca elemente decorative în interior

Copacii care sunt încorporați direct în acoperiș servesc ca un element decorativ frumos. Un candelabru interesant cu un model de val a fost înfășurat în jurul ramurilor copacului. Mobilierul din sala de mese, unde se află și copacii, a fost, de asemenea, mobilat cu lemn. Pardoseala și mobilierul de luat masa erau realizate din material lemnos deschis. Restul a fost proiectat într-o culoare albă simplă. Interiorul este foarte minimalist, complet în armonie cu fațada casei. Acea Casă în grădină este un bun exemplu al modului în care sentimentalismul și designul modern pot coopera.
Zona de intrare cu un design elegant

Vedere laterală a casei

Coridor cu formă de undă

Trunchi de copac în sufragerie

Prezentare generală de la etajul al doilea

Candelabru cu formă de undă

Copaci încorporați în acoperiș

Decor natural original

Planul interior

Trunchiuri de copaci ca parte a interiorului

Prezentare generală din exterior





