O casă modernă sănătoasă și durabilă
„Storrs Road Residence” este de Tim Stewart Architects, Australia
Această casă fabuloasă cu o singură poveste este situată în zona pitorească Peachester, lângă coasta Sunshine din Queensland, Australia.

Prima impresie a casei este cât de confortabil stă în împrejurimile sale verzi naturale. Acest lucru nu este surprinzător dacă înțelegeți puțin despre istoria familiei care locuiește acolo. Aceste casă modernă durabilă este de fapt o „reducere” pentru un cuplu și familia lor care locuiesc pe site de aproape 30 de ani. Tim Stewart Architects a construit această casă fabuloasă ecologică pe o porțiune din proprietatea familiei care a fost cândva o fermă masivă. După ani de cultivare, ferma este acum lăsată să revină la starea sa naturală pe măsură ce proprietarii încep să se retragă și să se bucure de un mod de viață autosuficient.
Arhitectură durabilă din lemn de Tom Stweard Architects

Atmosfera liniștită și luminoasă a casei reflectă acest mod de viață calm. Copacii bătrâni care cresc în jurul casei par să-l acopere cu un ecran natural de protecție. Lumina care strălucește printre frunze este calmă și răcoritoare.
Stilul arhitecturii este ușor și aerisit, cu accent mai degrabă pe volum decât pe masă. Acest efect a fost realizat prin utilizarea de materiale pentru linia lor subțire și proprietățile liniare. În combinație cu ferestre și uși mari din sticlă, casa se bucură de o conexiune maximă cu lumea naturală. Metalul, lemnul și sticla sunt combinate fluid într-un design modern armonios.
Reședința Storrs Road – o casă modernă durabilă

Arhitecții au unul casă modernă durabilă Conceput pentru a fi nu numai frumos, ci și eficient din punct de vedere energetic, cu activități de reciclare. Este instalat iluminat cu consum redus de energie, cum ar fi panourile solare pentru încălzirea apei și sistemele de stocare a apei. Casa a fost construită doar cu lemn, luată direct de pe amplasament sau din spații naturale deschise.
Aceasta poate fi o casă care reprezintă o retragere de la munca cu normă întreagă, dar cu siguranță nu este o „casă de bătrâni”. Interiorul este dinamic și plin de viață, ceea ce reprezintă bucuria vieții ocupanților. În mijlocul proprietății este o curte închisă cu o grădină. Legumele și ierburile cresc fericite sub plantele decorative. Există o eleganță casual fără griji în aceasta casă modernă durabilă, are personalitate și vervă. Interiorul deschis, proaspăt și luminos, este în alb, împodobit cu o mulțime de materiale diferite care adaugă energie casei. Mobilierul și mobilierul sunt moderne clasic și cu siguranță nu sunt alegerea persoanelor conservatoare sau sedative.
Esența tinerească a acestei case este perfectă pentru un cuplu care dorește să experimenteze lucruri noi în viață și să-și împărtășească bucuria de viață cu familia și prietenii.
de Jaz
Design interior al reședinței Storrs Road

Zona de luat masa și bucătărie



Atmosferă însorită și plină de viață în casă

Pe terasă – în armonie cu natura

minunata gradina din resedinta


Design dormitor în culori deschise

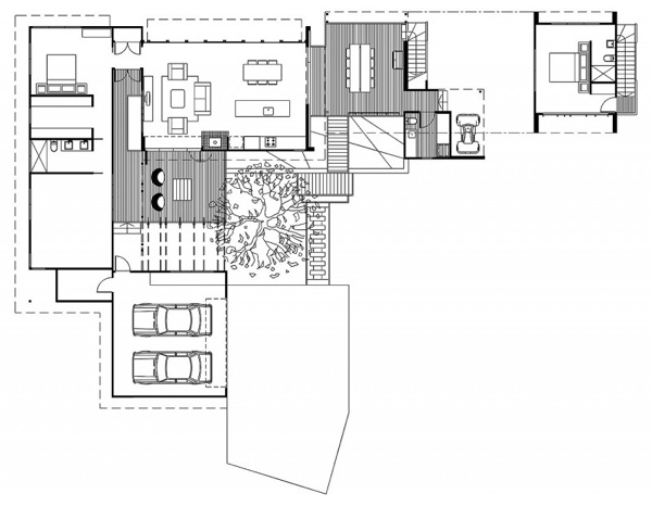
Planul arhitectural al casei durabile

