Culoare antracit într-un apartament modern la mansardă

Un apartament la mansardă în capitala Ucrainei, Kiev, a fost reproiectat și reconstruit. Obiectivul proiectului este menținerea caracteristicilor tipice de mansardă și interpretarea lor într-un mod modern. Culoare antracit, Iluminarea indirectă și accentele atractive fac ca designul modern al camerei să pară plin de viață și individual.
Culoare antracit în sufragerie – mobilier și design de perete

Camera de zi are o culoare antracit puternică și este destul de închisă. Este separat de bucătăria deschisă printr-un perete despărțitor și acționează ca un adevărat refugiu în apartamentul modern. Canapeaua de colț generoasă se întinde în zonă și oferă scaune confortabile pentru mai multe persoane.
Combinați culoarea antracit cu lemnul – interior modern

Mai multe nuanțe de gri pot fi descoperite în camera de zi, care prezintă camera într-un mod simplu, dar variat. Micile piese de mobilier cu un aspect natural din lemn dau un aer confortabil și creează o atmosferă confortabilă.
Culoare antracit și iluminare indirectă atractivă în camera de zi

Designul interesant al pereților din cărămizi de clincher gri rafinate și grinzile de oțel servesc drept elemente de legătură cu caracterul mansardă al apartamentului. În zona bucătăriei, structura inconfundabilă a construcției din oțel este subliniată de iluminarea indirectă.
Culoare antracit pentru design interior modern – sufragerie și bucătărie deschisă

Acoperișul apartamentului modern este de fapt complet conceput ca un acoperiș cu butoi. Structura inconfundabilă a construcției din oțel și placarea tavanului cu placaj natural sunt atrăgătoare. Acoperirea podelei este similară cu podeaua albă din scândură și este uniformă pentru întregul spațiu de locuit.
Culoare antracit și grinzi de oțel într-un apartament modern la mansardă

Culoarea antracit este din nou prezentă în baie. Este combinat cu alb și se delectează cu lumină naturală datorită luminatorului. Baia exclusivă este dotată cu o cadă și un duș separat cu perete de sticlă.
Bucătărie modernă, deschisă, de culoare albă și antracit

Incorporați grinzile de oțel într-un mod atractiv și modern – cu iluminare indirectă

Viața modernă prin planificarea spațiului deschis

Bucătărie modernă, deschisă, în alb și negru și gri

Apartament modern la mansardă – placat acoperișul înclinat cu placaj și accentuează grinzile de oțel

Studiază într-un apartament modern la mansardă

Vopsea gri de perete în dormitorul modern cu tavan înclinat

Baie modernă în culoarea peretelui antracit și alb

Baie modernă, cu tavan înclinat

Terasă atractivă pe acoperiș, cu o priveliște minunată

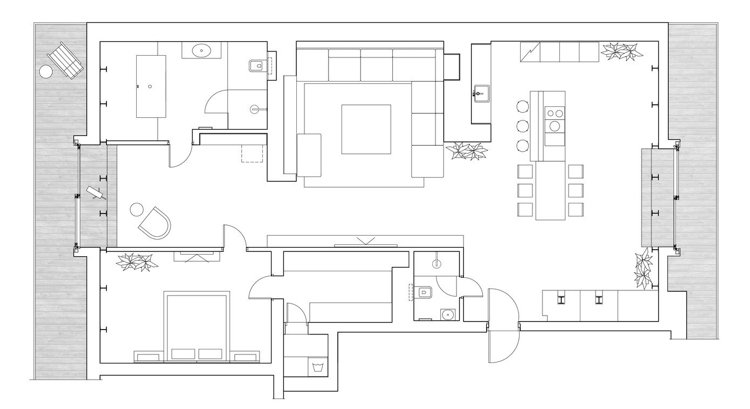
Plan de etaj cu dispunerea camerei apartamentului de la ultimul etaj

Vedere laterală – apartament la ultimul etaj cu acoperiș cu butoi

Secțiune transversală – apartament modern la ultimul etaj, cu acoperiș în butoi

* un proiect de Alex Obraztsov
