Designul casei în Belgia – Frumusețea minimalismului

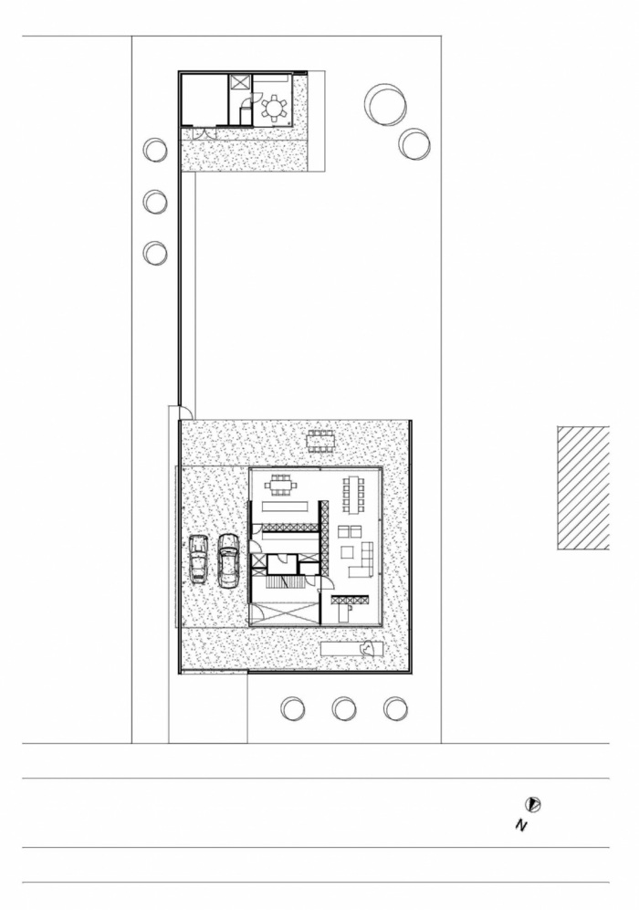
Această casă modernă este situată în Belgia și se caracterizează printr-un stil simplu și modern. Acest lucru se întâmplă deja atunci când privim fațada exterioară. Casa este formată din pereți albi și are o formă dreptunghiulară de bloc, fără ferestre pe partea laterală a drumului pentru a garanta intimitatea. Acea Proiectare casă în Belgia provine de la Steven de Jaeghere și se află în Roeselare.
Proiectarea casei în Belgia – curtea din față

Proiectarea simplă a casei în Belgia este continuată și în grădină. Grădina din față are doar câțiva copaci, în timp ce o peluză mare împodobește zona în aer liber din grădina din spate. Un pic mai retras și la celălalt capăt al grădinii este o pensiune care include tot ce este necesar pentru a face vizitatorii cât mai confortabili.
Proiectare casă în Belgia – design simplu de grădină cu copaci

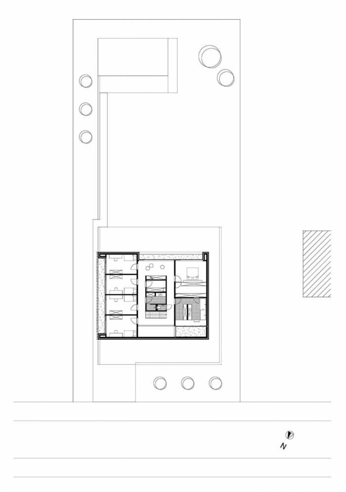
În interior se remarcă faptul că principalele culori sunt negru și gri, precum și alb și crem. Acest lucru creează un efect monocrom care, împreună cu mobilierul minimalist, creează un interior modern. Două etaje au fost create pentru designul casei din Belgia. În primul se află, printre altele, livingul cu zonă de luat masa, precum și bucătăria modernă, care are și o masă. Soba cu lemne, care, datorită culorii sale negre, formează un accent în peretele încorporat alb, creează o atmosferă confortabilă. O scară atractivă cu trepte aparent plutitoare duce la etajul al doilea. Cuvântul cheie „simplitate” poate fi găsit și în baie. Acesta este alcătuit din nuanțe deschise. Un adevărat punct de atracție este mai presus de toate dușul la modă la nivel de podea, care a fost ales pentru designul casei din Belgia.
Calea de acces a casei belgiene

Design casă cu ferestre mari

Design modern al scărilor din trepte aparent plutitoare

Holul casei cu dale de piatră neagră

Proiectare casă în Belgia – unitate de perete albă

Design cameră de zi cu zonă de luat masa

Designul casei cu un living luminos și iluminat indirect

Designul bucătăriei casei cu masă albă

Amenajare baie cu duș la pardoseală










Un design de DE JAEGHERE Architectuuratelier.
