Vila Wienberg – casă unifamilială renovată caracterizată prin contraste

A casă de familie renovată în Aarhus, Danemarca este un loc foarte special, caracterizat prin contraste. Rareori presupusele contrarii se întâlnesc la fel de armonios ca aici. Întuneric și lumină, modern și vechi, cald și rece, lumină și umbră formează un tot armonios și te invită să trăiești liniștit.
Casă de familie renovată de Wienberg Architects și Friis & Moltke

Vila este situată pe un teren de colț din Højbjerg, o zonă rezidențială din Aarhus. Mette și Martin Wienberg în colaborare cu arhitecții danezi Friis & Moltke a transformat această casă de vacanță din Danemarca, care există din 1940, într-o casă modernă și confortabilă pentru familia lor. La Villa Wienberg, granițele sunt trecute, pentru care a fost distins cu Premiul de Arhitectură Orașul Aarhus în 2008.
Vila Wienberg – o casă de contraste

Vila Wienberg este mult mai mult decât un simplu rcasă unifamilială renovată. Este o casă a contrastelor. Spre deosebire de fațada strictă neagră, în camere există o atmosferă confortabilă și caldă. Pereții interiori sunt îmbrăcați în stejar, ceea ce îi face să arate aproape în viață. Mobilierul de relaxare este completat de blănuri moi și perne pentru canapea. Tonificarea caldă a lemnului este utilizată în multe feluri și combinată cu pardoseli din beton lustruit. Ferestrele glisante mari oferă vedere relaxată la grădina din jur, cu paturi de flori.
Casă de familie renovată din Arhitecți Wienberg – un refugiu confortabil

Pe suprafața de locuit de 184 m2, locuitorii vor găsi relaxare și retragere, precum și emoție și inspirație.
Holul este luminos și purist

Vila Wienberg oferă o viață inundată de lumină

Camera copiilor are și efect scandinav-purist

Grădină interioară cu plante în ghivece

Bucătărie albă spațioasă cu insulă

Baie simpla cu gresie intr-o nuanta inchisa

Interior confortabil, cu pereți cu lambriuri din lemn

Placarea peretelui de stejar radiază căldură

Lemnul și betonul se completează reciproc

Mobilier din piele în aceeași familie de culori ca pereții

Există o atmosferă liniștită

Pielea și blănurile oferă mai mult confort

Scările care duc la etaj au rafturi de cărți încorporate

Fotografii de Mikkel Mortensen
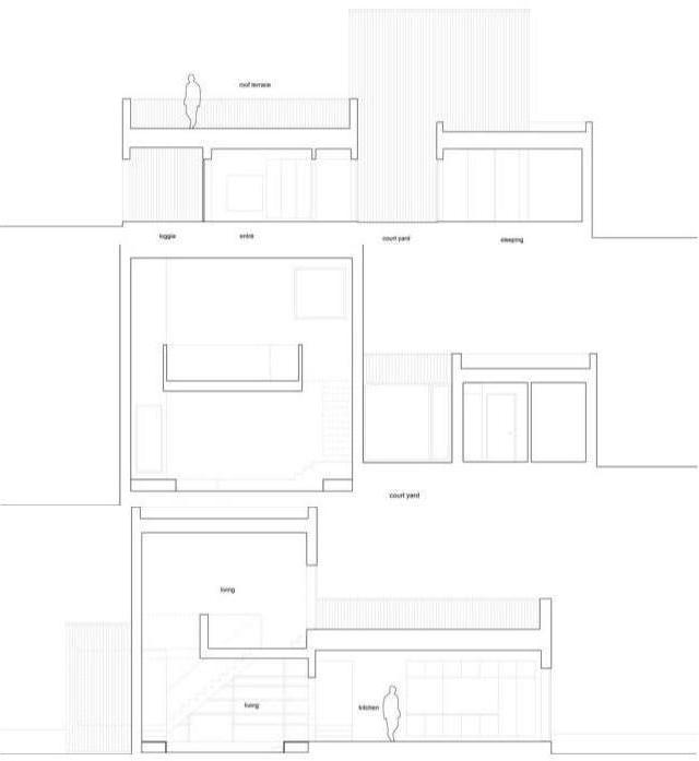
Vila Wienberg – dispunerea camerei și planul etajului


vedere din față



Vila Wienberg – vederi

